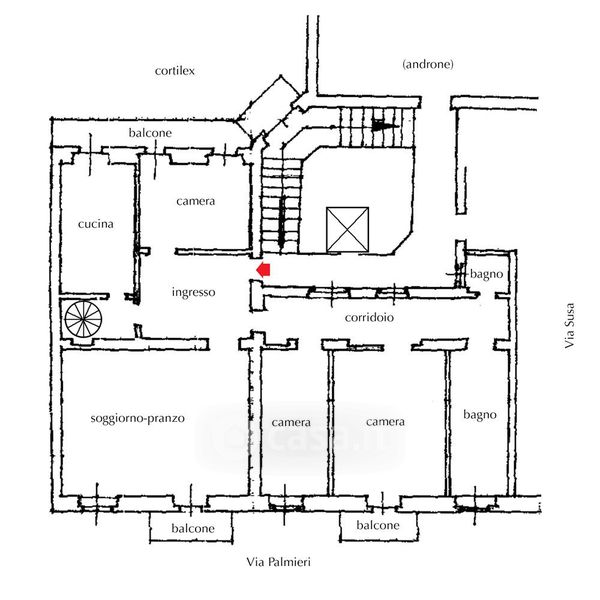
Appartamento in affitto Via Susa 23, Torino
Salva
Casa.it
1/37
  • Street View
  • Map