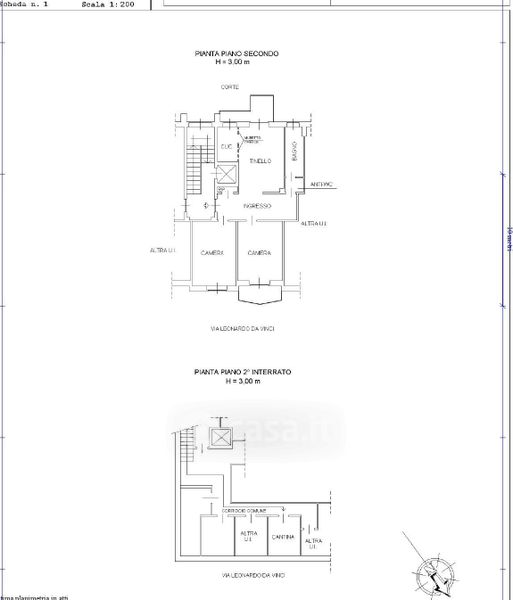
Appartamento in vendita Via Leonardo da Vinci 28, Torino
Salva
Casa.it
1/33
  • Street View
  • Map