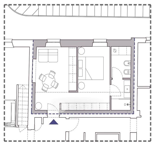
Appartamento in vendita Via Carlo Alberto 6, Torino
Salva
Casa.it
1/29
  • Street View
  • Map