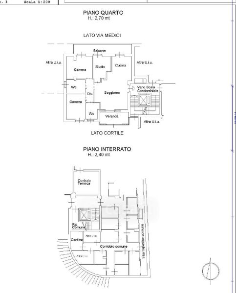
Appartamento in affitto Via Giacomo Medici 121, Torino
Salva
Casa.it
1/35
  • Street View
  • Map