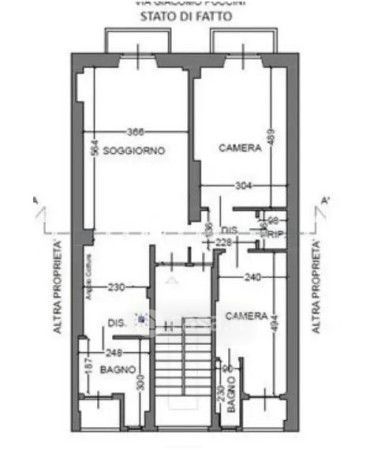
Appartamento in vendita Via Giacomo Puccini 21, Torino
Salva
Casa.it
1/20
  • Street View
  • Map