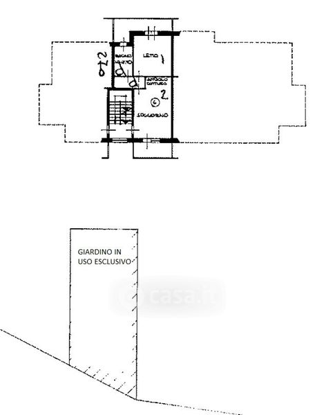
Appartamento in vendita Via Boschetto 4, Torre Pellice
Salva
Casa.it
1/11
  • Street View
  • Map