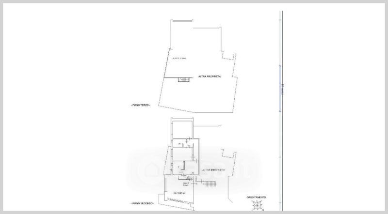
Appartamento in vendita Via Francisco Ferrer , Tortona
Salva
Casa.it
1/32
  • Street View
  • Map