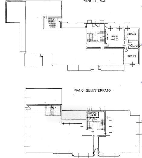
Appartamento in vendita Via Monsignor Guido Tonetti 6, Trecate
Salva
Casa.it
1/12
  • Street View
  • Map