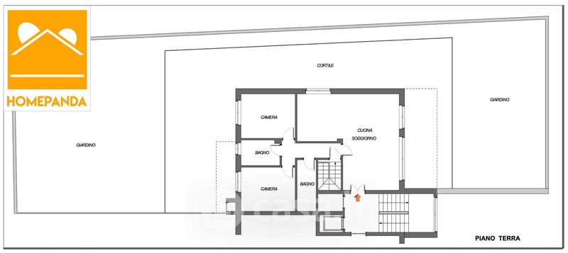
Appartamento in vendita Via Nino Costa 20, Trofarello
Salva
Casa.it
1/33
  • Street View
  • Map