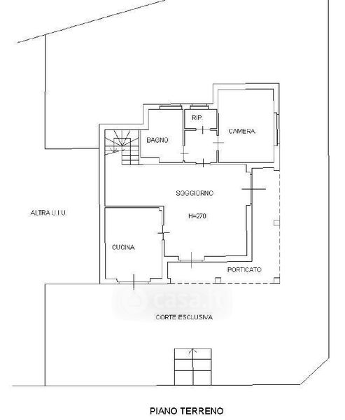
Appartamento in vendita Via Torino 63, Vaie
Salva
Casa.it
1/39
  • Street View
  • Map