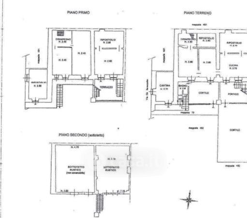
Appartamento in vendita Via Cà Barazzotto 5, Vigliano Biellese
Salva
Casa.it
1/21
  • Street View
  • Map