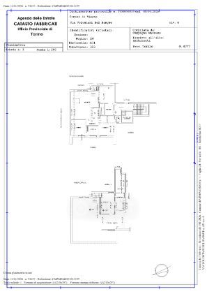
Appartamento in vendita Via volontari del sangue 4, Vinovo
Salva
Casa.it
1/56
  • Street View
  • Map