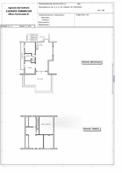
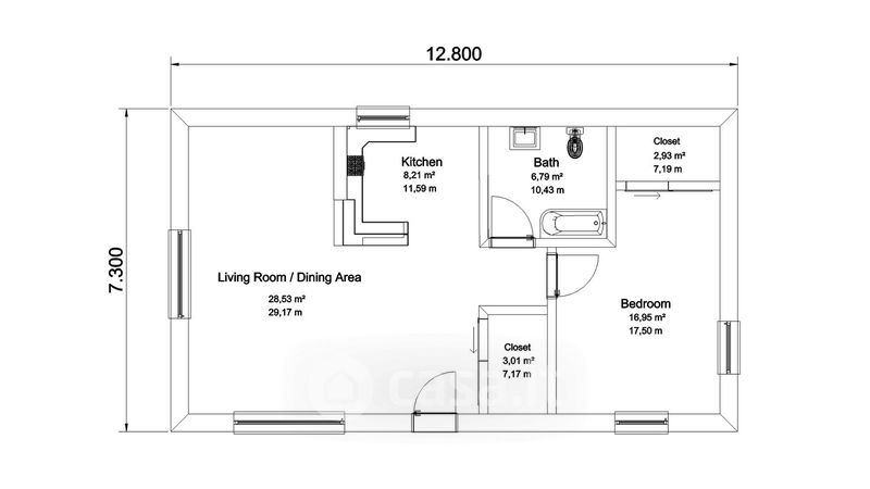
Appartamento in vendita Via Domenico Cimarosa , Altamura
Salva
Casa.it
1/39
  • Street View
  • Map