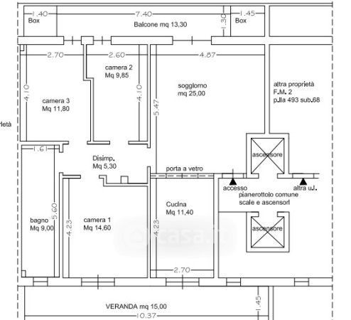
Appartamento in vendita Via Vincenzo Zaccaria , Bari
Salva
Casa.it
1/21
  • Street View
  • Map