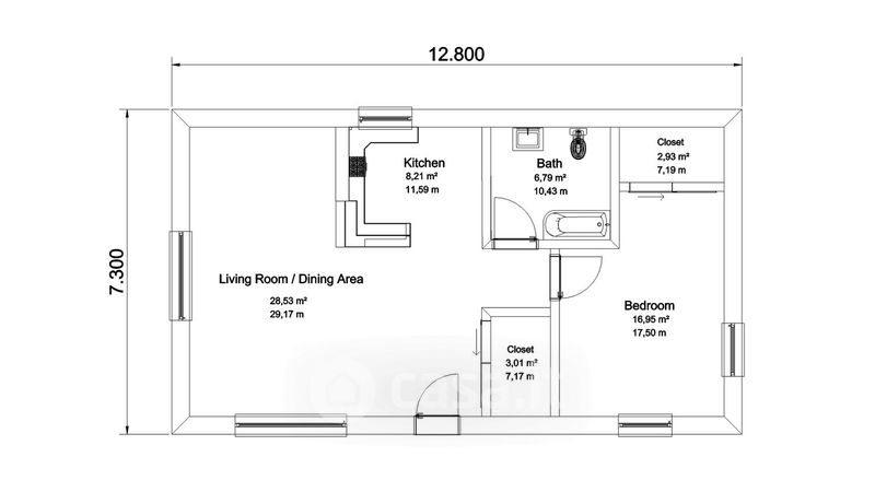
Appartamento in vendita Via Francesco Eugenio Silvestri , Bari
Salva
Casa.it
1/39
  • Street View
  • Map