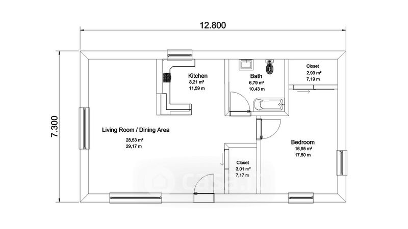
Appartamento in vendita Via Monsignor F. P. Calamita , Bitonto
Salva
Casa.it
1/39
  • Street View
  • Map