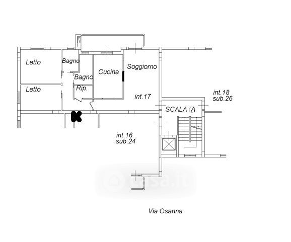
Appartamento in vendita Via Osanna 104, Brindisi
Salva
Casa.it
1/9
  • Street View
  • Map