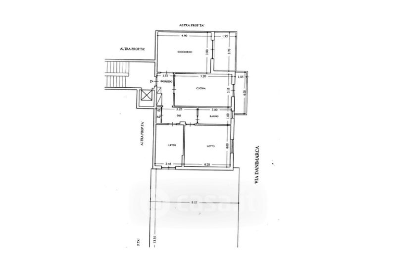
Appartamento in vendita Via Danimarca 9, Brindisi
Salva
Casa.it
1/48
  • Street View
  • Map