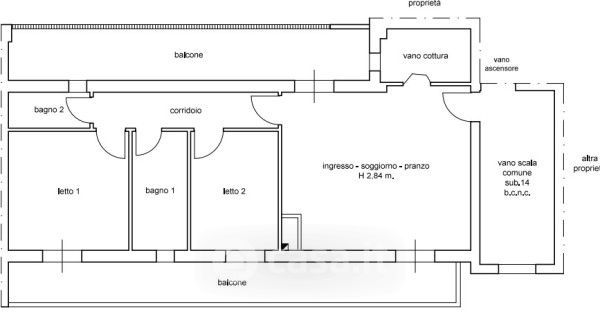
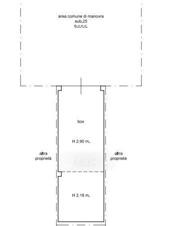
Appartamento in vendita Piazza Caduti , Calimera
Salva
Casa.it
1/21
  • Street View
  • Map