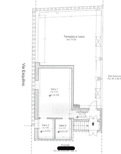
Appartamento in vendita Via Esquilino , Canosa di Puglia
Salva
Casa.it
1/32
  • Street View
  • Map