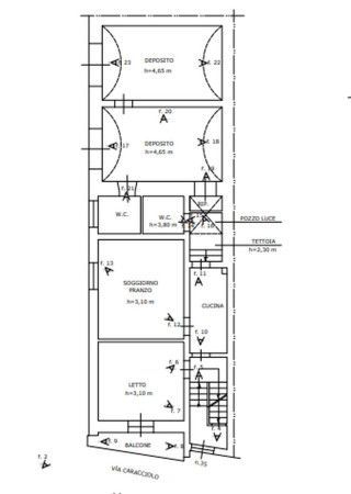
Appartamento in vendita Via Francesco Petrarca , Capurso
Salva
Casa.it
1/20
  • Street View
  • Map