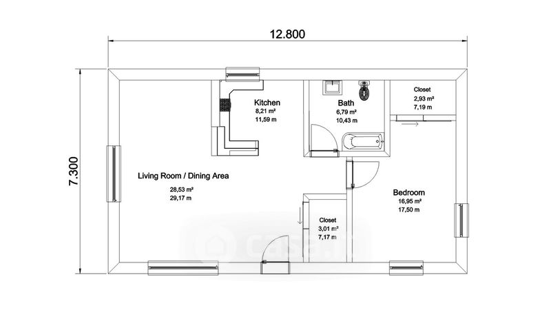
Appartamento in vendita Via Fratelli Rosselli , Cassano delle Murge
Salva
Casa.it
1/39
  • Street View
  • Map