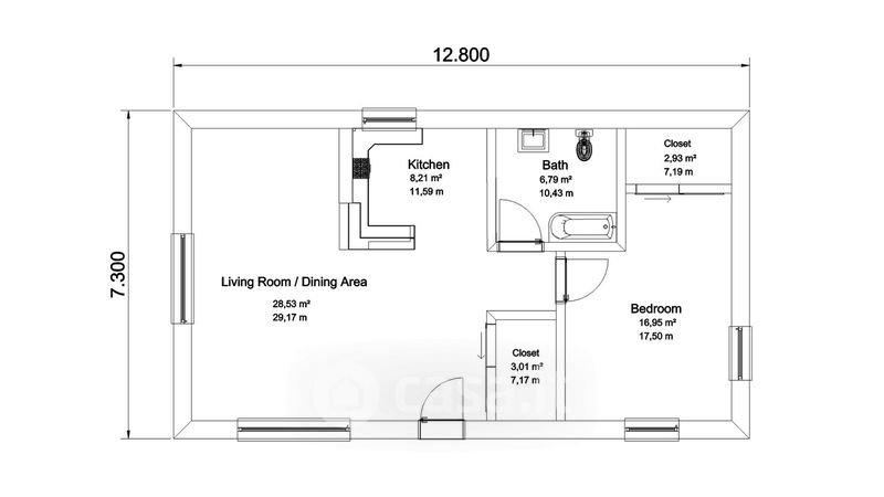
Appartamento in vendita Via 24 Maggio , Cassano delle Murge
Salva
Casa.it
1/39
  • Street View
  • Map