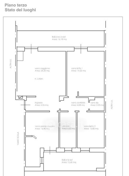
Appartamento in vendita Via Canonico Prof. Vito Palazzo 37, Ceglie Messapica
Salva
Casa.it
1/25
  • Street View
  • Map