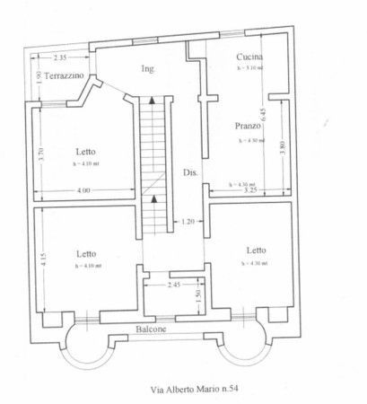
Appartamento in vendita Via Alberto Mario , Cutrofiano
Salva
Casa.it
1/18
  • Street View
  • Map