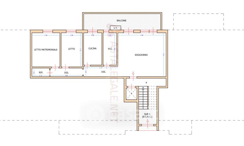
Appartamento in vendita Viale L. Longo 14, Fasano
Salva
Casa.it
1/35
  • Street View
  • Map