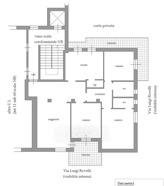
Appartamento in vendita Via Luigi Rovelli , Foggia
Salva
Casa.it
1/37
  • Street View
  • Map