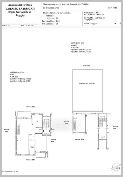
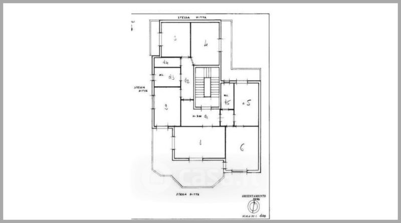
Appartamento in vendita Via Paolo Telesforo , Foggia
Salva
Casa.it
1/32
  • Street View
  • Map