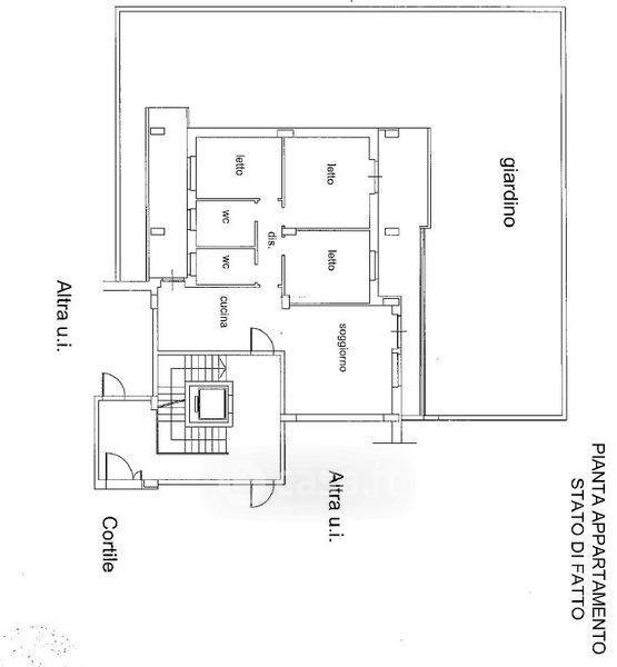
Appartamento in vendita Via Ugo Iarussi , Foggia
Salva
Casa.it
1/33
  • Street View
  • Map