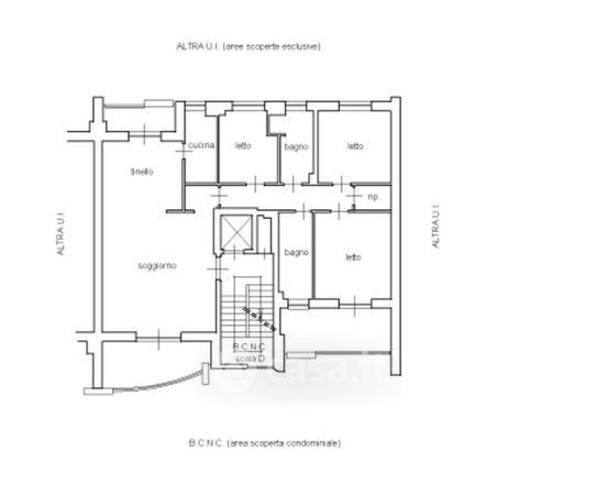
Appartamento in vendita Via Luigi Einaudi 4, Foggia
Salva
Casa.it
1/20
  • Street View
  • Map