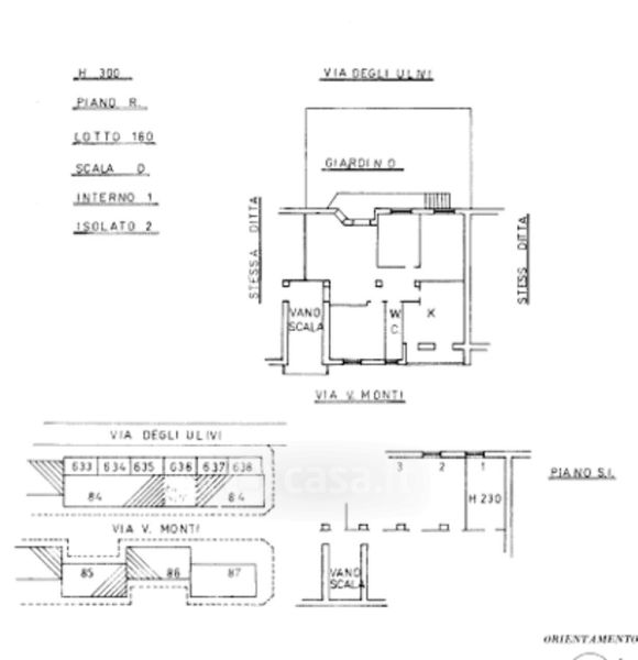
Appartamento in vendita Via Vincenzo Monti 5, Foggia
Salva
Casa.it
1/34
  • Street View
  • Map