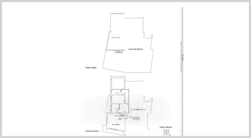
Appartamento in vendita Strada Poderale San Lorenzo , Foggia
Salva
Casa.it
1/32
  • Street View
  • Map