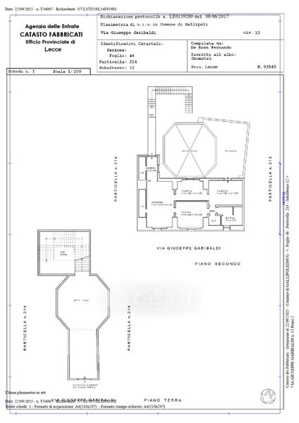
Appartamento in vendita Via Giuseppe Garibaldi , Gallipoli
Salva
Casa.it
1/38
  • Street View
  • Map