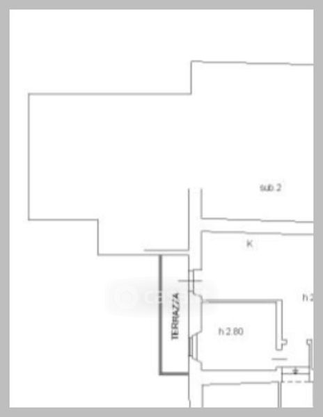
Appartamento in vendita Via Matera , Gravina in Puglia
Salva
Casa.it
1/32
  • Street View
  • Map