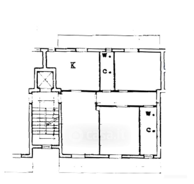
Appartamento in vendita Via Riccardo Lombardi 19, Grumo Appula
Salva
Casa.it
1/18
  • Street View
  • Map