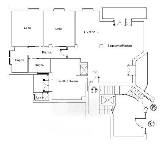
Appartamento in vendita Viale G. Leopardi 153, Lecce
Salva
Casa.it
1/40
  • Street View
  • Map