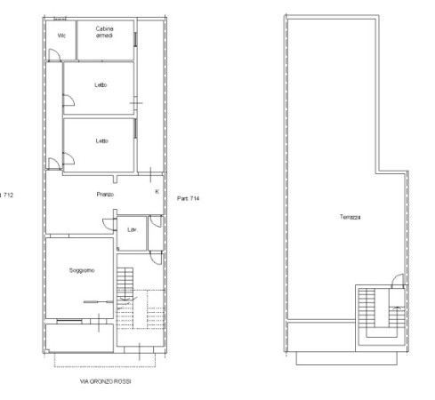
Appartamento in vendita Via Oronzo Rossi , Lequile
Salva
Casa.it
1/18
  • Street View
  • Map