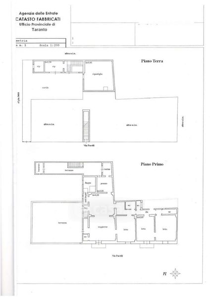
Appartamento in vendita Via Giuseppe Pacelli , Manduria
Salva
Casa.it
1/27
  • Street View
  • Map