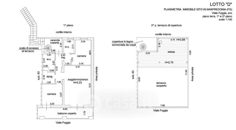
Appartamento in vendita Viale Foggia , Manfredonia
Salva
Casa.it
1/27
  • Street View
  • Map