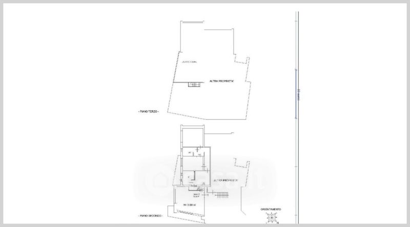
Appartamento in vendita Via Canne , Margherita di Savoia
Salva
Casa.it
1/37
  • Street View
  • Map