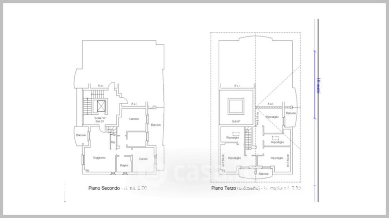
Appartamento in vendita Via Dina Bertone Jovine , Margherita di Savoia
Salva
Casa.it
1/37
  • Street View
  • Map