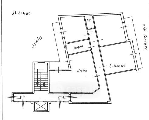
Appartamento in vendita Viale dei Lecci 28 -38, Martina Franca
Salva
Casa.it
1/32
  • Street View
  • Map