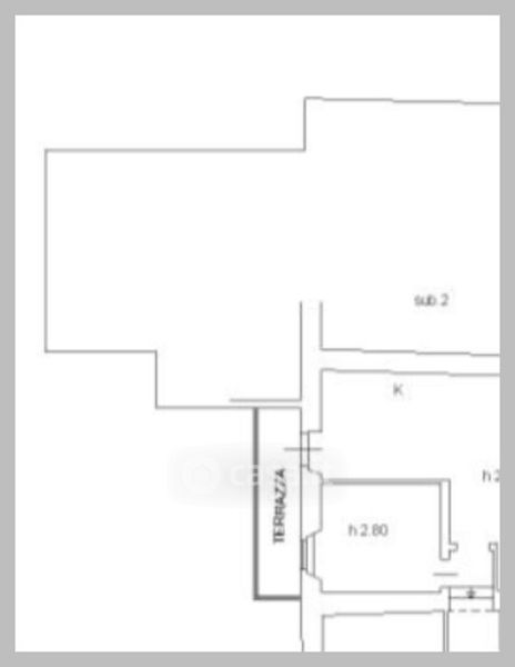
Appartamento in vendita Via M. San Bernardo , Mesagne
Salva
Casa.it
1/32
  • Street View
  • Map