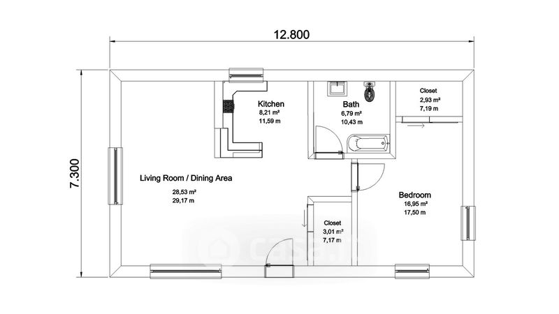
Appartamento in vendita Via Siracusa , Modugno
Salva
Casa.it
1/39
  • Street View
  • Map