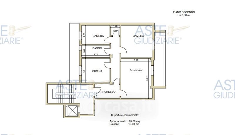
Appartamento in vendita Via Ippolito Nievo 3, Noicattaro
Salva
Casa.it
1/27
  • Street View
  • Map