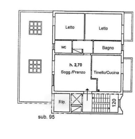
Appartamento in vendita Via Giacomo Leopardi , Parabita
Salva
Casa.it
1/21
  • Street View
  • Map