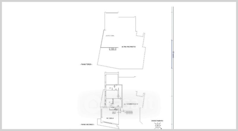
Appartamento in vendita Via Giuseppe Maria Romanazzi Carducci , Putignano
Salva
Casa.it
1/37
  • Street View
  • Map