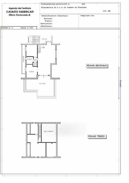
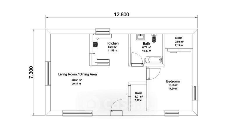
Appartamento in vendita Via Derna , Putignano
Salva
Casa.it
1/39
  • Street View
  • Map