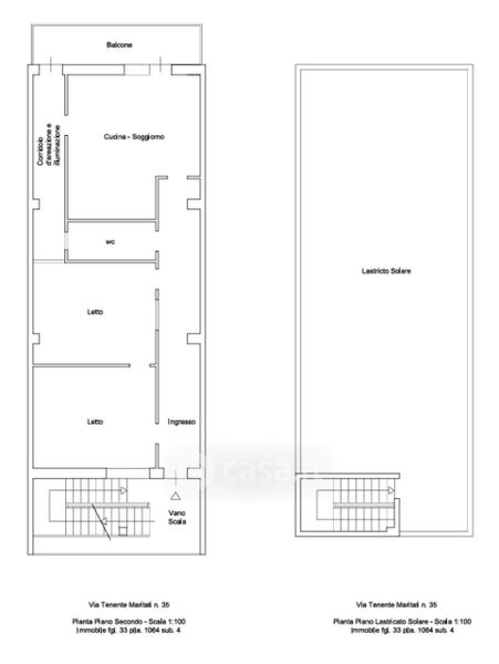
Appartamento in vendita Via Tenente C. Maritati 35, Salice Salentino
Salva
Casa.it
1/30
  • Street View
  • Map