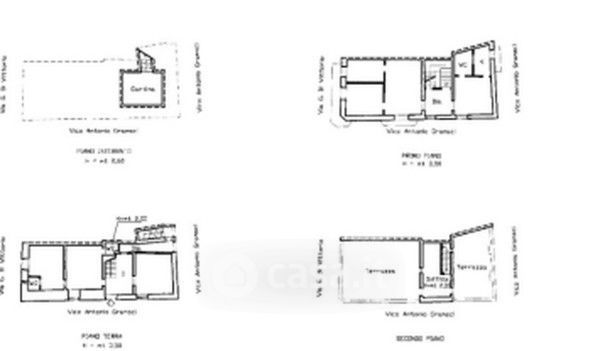
Appartamento in vendita Vico Antonio Gramsci , Sammichele di Bari
Salva
Casa.it
1/19
  • Street View
  • Map